Wohnen Linda Wohnen Linda

Einsiedler

Zukunftsweisende Metamorphose: Umbau und Erweiterung eines Einfamilienhauses in Horgen - Umwandlung in zwei stilvolle Eigentumswohnungen.

 

Details

Fokus: Zukunftsweisende Metamorphose: Umbau und Erweiterung eines Einfamilienhauses in Horgen - Umwandlung in zwei stilvolle Eigentumswohnungen.
Nummer: 1039.00
Disziplin: Architektur, Innenarchitektur
Typologie: Wohnen
Leistung: 3 Projektierung, 4 Ausschreibung, 5 Realisierung
Jahr: 2020 - 2022
Kosten: CHF 1’400’000.00
Standort: Einsiedlerstrasse 312, 8810 Horgen, Kt. Zürich
Kunde: Privat
Fotograf: Studio Gataric Fotografie
Presseartikel: Der Schweizerische Hauseigentümer, Haus und Wohnen , Ausgabe 2024/2025

Das Projekt

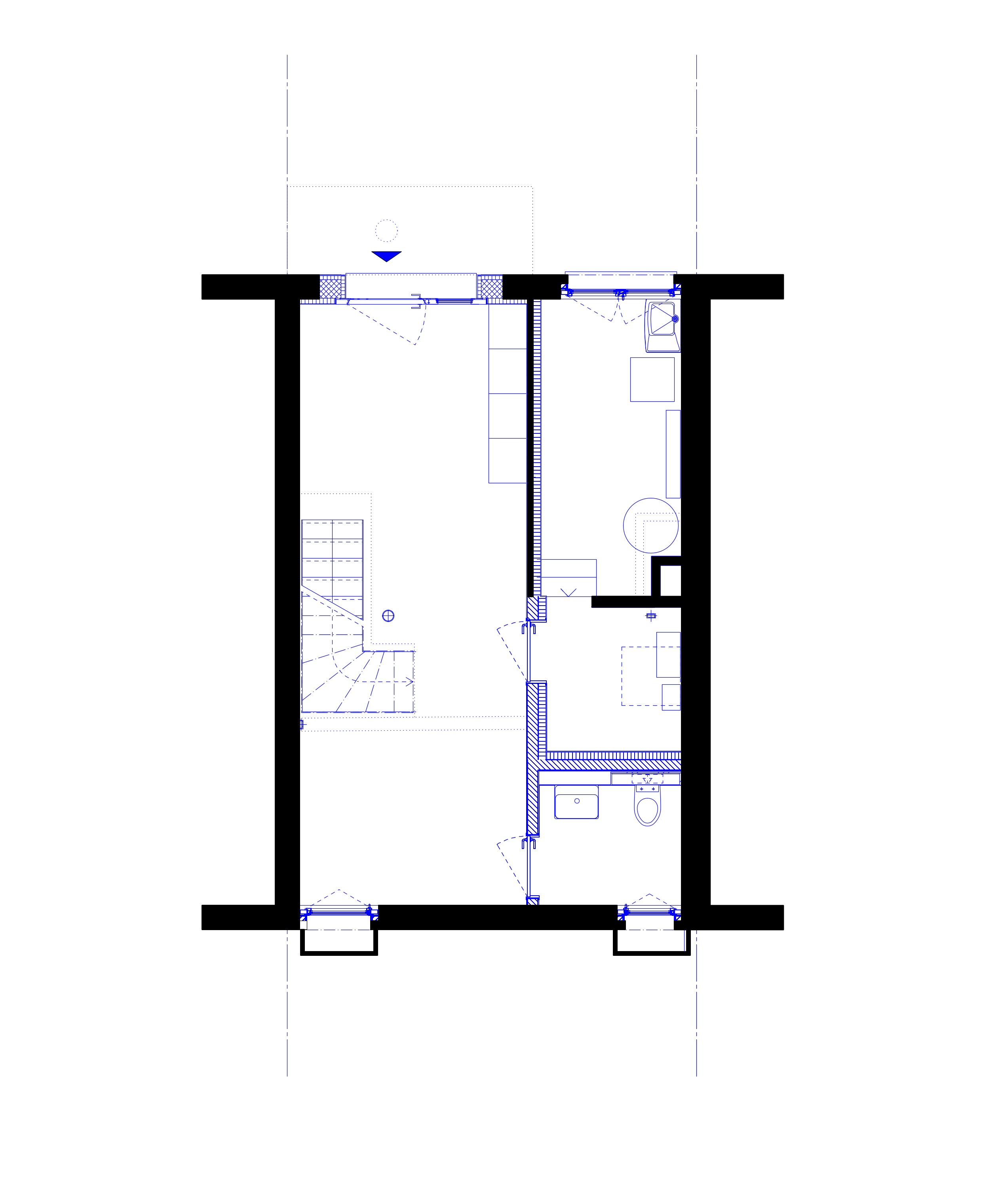
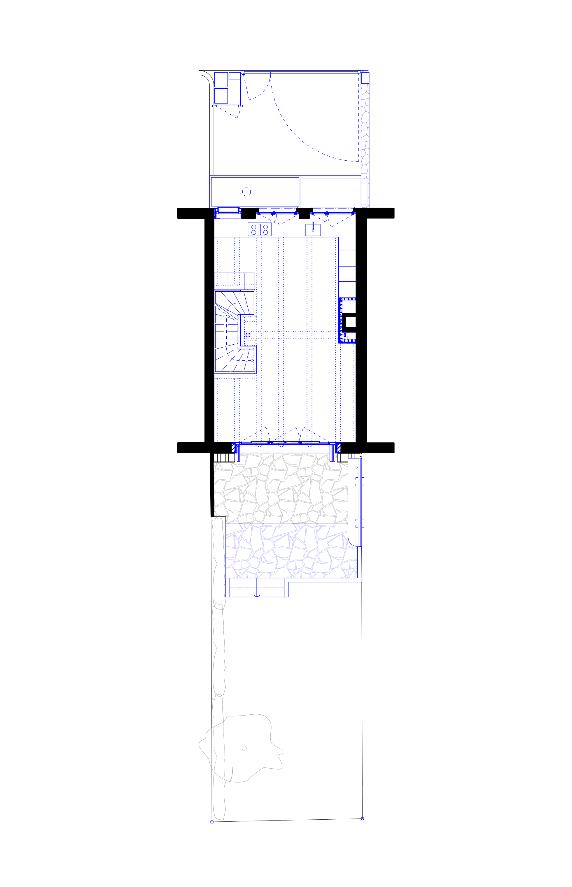
Eingebettet zwischen Bäumen und Hecken in der Gemeinde Horgen am Zürichsee ermöglicht das Einfamilienhaus aus den 1970er-Jahren eine Umgebung mit viel Privatsphäre und Erholungsraum: Mit rund 200 Quadratmetern ist das Haus grosszügig angelegt. Das Projekt für Raumtakt besteht nun darin, dass Einfamilienhaus in ein Zweifamilienhaus umzubauen. Dabei stehen die Bedürfnisse der Familie klar im Vordergrund: Früher war es ein Zuhause für zwei Geschwister, die dort aufgewachsen sind, heute sollen sie nun nach modernsten Standards unter einem Dach zusammenwohnen, so dass aber jeder auch seine eigenen Räume zur Verfügung hat. Das Haus nun umzubauen, ergab sich nicht nur aus den gemeinsamen Erinnerungen und den emotionalen Wert, sondern auch durch den Anspruch an Nachhaltigkeit. Raumtakt erstellte dazu ein umfassendes Konzept: Dazu kamen neue Fenster, der Verzicht auf fossile Brennstoffe, eine umweltfreundlichere Dämmung des Dachs sowie weitere Vorbereitungsarbeiten für künftige Interventionen. Dazu wird die Gebäudehülle nun den heutigen Anforderungen an den Energieverbrauch gerecht.

Um das Einfamilienhaus in ein Zweifamilienhaus zu transformieren, werden zwei zeitgemässe und zukunftsfähige Wohnungen realisiert. Dabei wird der Platzbedarf den heutigen Anforderungen und Umständen der Bewohnerinnen angepasst. Dazu wird der individuelle Charakter durch die Innenarchitektur der beiden Wohnungen sichtbar – und immer auch für künftige Generationen vorausgedacht. Das Einfamilienhaus in Horgen, in dem die Bauherrschaft aufgewachsen ist, wurde sorgfältig umgebaut und in zwei moderne Eigentumswohnungen umgewandelt. Sie sollen ein attraktives Wohnerlebnis in einer natürlichen Umgebung zu schaffen. Die Innenarchitektur der beiden Wohnungen wurde so gestaltet, dass sie ein modernes und einladendes Ambiente schafft, während der ursprüngliche Charakter des Gebäudes bewahrt bleibt. Beide Wohnungen sind grosszügig angelegt und bieten ausreichend Platz für eine komfortable Wohnatmosphäre. Das Haus ist auf Halbstockwerke aufgebaut und musste entsprechend den neusten Schalldämmungen entsprechen. Die obere Eigentumswohnung wurde mit einer neuen Aussentreppe von der Nordwestseite erschlossen. In der Umgestaltung des Hauses war aber nicht nur ein hoher Anspruch an eine zeitgemässe Architektur ausschlaggebend, sondern auch der Einbezug der neusten Standards zur Energieeffizienz und Nachhaltigkeit: Eine moderne Luftwärmepumpe dient als primäre Energiequelle und die verbesserte Dämmung des Dachs und der Fassade reduziert den Energieverbrauch des Gebäudes erheblich. Die Planung der Umgestaltung berücksichtigte auch die Möglichkeit, eine Photovoltaikanlage zu einem späteren Zeitpunkt zu installieren, um das Gebäude noch energieeffizienter zu machen.

Ein weiterer zentraler Aspekt des Umbaus war die Integration des Gebäudes in die Umgebung: Es sollte eine harmonische Verbindung zwischen Architektur und Natur geschaffen werden. Die Baumbestände und die Pflanzen wurden in die Gestaltung des Gartens einbezogen und sorgen für ein angenehmes Wohnerlebnis in einer natürlichen Umgebung. Insgesamt ist das Umbauprojekt des Einfamilienhauses in Horgen ein praktisches Beispiel dafür, wie ein älteres Gebäude modernisiert werden kann, um den Bedürfnissen der heutigen Zeit gerecht zu werden. Die Umgestaltung in zwei moderne Eigentumswohnungen, die Verwendung einer Luftwärmepumpe als primäre Energiequelle, die Verbesserung der Dämmung und die Vorbereitung für eine zukünftige Installation einer Photovoltaikanlage sind Massnahmen, die das Gebäude energieeffizient und nachhaltig machen.

  • Was waren Ihre Beweggründe für den Umbau oder die Sanierung Ihres Hauses?
    Mit Baujahr 1975 war unser Einfamilienhaus, obwohl es gut gepflegt war, in die Jahre gekommen. Es war uns ein Bedürfnis, vor allem die Ölheizung und Fenster zu ersetzen – und alle Installationen wieder auf den neusten Stand zu bringen. Ausserdem beabsichtigten wir, die Immobilie in zwei Wohnungen aufzuteilen. 

    Was waren Ihre Beweggründe für den Umbau oder die Sanierung Ihres Hauses?
    Mit Baujahr 1975 war unser Einfamilienhaus, obwohl es gut gepflegt war, in die Jahre gekommen. Es war uns ein Bedürfnis, vor allem die Ölheizung und Fenster zu ersetzen – und alle Installationen wieder auf den neusten Stand zu bringen. Ausserdem beabsichtigten wir, die Liegenschaft in zwei Wohnungen aufzuteilen. 

    Wie lange haben Sie darüber nachgedacht, Ihr Haus zu renovieren, bevor Sie sich dazu entschieden haben?
    Alles in allem etwa drei Jahre. Es gab vor Raumtakt bereits verschiedene Szenarien mit anderen Baufachleuten. Auch ein Abriss und Neubau war im Gespräch. 

    Weshalb haben Sie sich für Raumtakt entschieden?
    Wir wurden im Internet auf Raumtakt aufmerksam und haben dort gesehen, dass die Firma bereits einige Umbauten vorgenommen hatte, die uns gut gefallen haben. 

    Was hat Ihnen den Ausschlag gegeben, das Projekt mit Raumtakt durchzuführen?
    Nachdem ein persönlicher Kontakt stattgefunden hatte, in welchem wir unsere Vorstellungen geäussert hatten, waren wir uns rasch einig, dass wir das Projekt mit der Firma Raumtakt durchführen wollten. Sie waren die einzige Firma, die wahrhaftig interessiert war an einem Umbau und nicht einfach einen Neubau realisieren wollten. 

    Was war ihr erster Eindruck nach dem Angebot?
    Wir fanden es teuer, sind aber nach Abschluss der Arbeiten überzeugt, dass Raumtakt eine ausgezeichnete Wahl war. Dies vor allem wegen der Kostengenauigkeit und natürlich auch, weil der Umbau sehr gelungen ist und sehr unseren Erwartungen entspricht. 

    Welche Arbeiten wurden im Rahmen des Umbaus und der Renovierung durchgeführt und wie wurden sie umgesetzt?
    Eine Gesamtsanierung der Liegenschaft, neue Heizung, neue Fenster, neue Elektro- und Sanitärinstallationen sowie diverse Anpassungen am Gebäude gemäss unseren Wünschen (z.B. grössere Fenster, die Garage wurde in ein Zimmer umgewandelt) 

    Wie haben Sie den Prozess der Planung und Durchführung des Umbaus erlebt?
    Der Planungs- und Durchführungsprozess war intensiv, da erst im Laufe der Zeit verschiedene Wünsche unsererseits berücksichtigt werden konnten, gemäss dem jeweiligem Kostenstand. Durch diese ganze Zeit hat uns Raumtakt sehr kompetent begleitet und hat während des Umbaus auch die Bauleitung zuverlässig wahrgenommen. Ausserdem arbeitet Raumtakt mit ausgezeichneten Handwerkern zusammen, welche die Arbeiten sorgfältig und fristgerecht ausgeführt haben. 

    Wie wichtig war Ihnen der Nachhaltigkeits-Aspekt beim Umbau?
    Nachhaltigkeit war uns ein grosses Anliegen und wir haben z.B. die Ölheizung durch eine Heizung mit Luft-Wärme-Pumpe ersetzt und neue Fenster eingebaut. In einem weiteren Schritt sollen nun auch noch Solar-Panels montiert werden. 

    Gab es während des Umbaus unerwartete Herausforderungen, mit denen Sie konfrontiert waren?
    Wenn ja, welche waren das und wie haben Sie und Raumtakt diese gelöst? Es gab während der Bauphase Situationen, in welchen plötzliche Mängel aufgetaucht sind. Wir wurden von Raumtakt darüber stets zeitnah und mit entsprechenden Behebungsvorschlägen informiert. Zum Glück gab es nie grobe Mängel mit schwerwiegenden Folgen. 

    Wie wurden Sie während des Bauprojektes über den Fortschritt der Arbeiten informiert?
    Da wir in der Nähe des Objekts wohnten, konnten wir uns stets selbst vor Ort ein Bild über den Fortgang der Arbeiten machen. Und wie bereits oben erwähnt, wurden wir durch Raumtakt immer bestens informiert und auf dem Laufenden gehalten. 

    Wie haben Sie die Zusammenarbeit mit Raumtakt und den Handwerkern vor Ort, die am Umbau beteiligt waren, empfunden?
    Die Zusammenarbeit war stets professionell und angenehm. Wenn es Unstimmigkeiten gab, wurden diese auf konstruktiver und vertrauensvoller Basis gelöst. Besonders hervorheben möchten wir die ausgezeichnete Bauleitung vor Ort und die sehr zuverlässigen Handwerker, mit welchen Raumtakt zusammenarbeitet. 

    Gab es während des Umbaus Kostenüberschreitungen oder Verzögerungen? Wie verlief die Absprache dazu?
    Die Zusammenarbeit bezüglich Kosten war sehr erfreulich und diese wurden während des gesamten Umbaus durch Raumtakt unter Kontrolle gehalten. Mehrkosten, verursacht durch Extrawünsche unsererseits, wurden transparent kommuniziert. Es gab weder Kostenüberschreitungen noch Verzögerungen. Insgesamt hat Raumtakt dieses Projekt ausgezeichnet durchgeführt. 

    Wie zufrieden sind Sie mit dem Ergebnis der Gesamtsanierung? Gab es etwas, das Sie im Nachhinein anders gemacht hätten?
    Wir sind mit dem Ergebnis sehr zufrieden, ausser vielleicht, dass wir den Umbau mit Raumtakt schon früher in Angriff hätten nehmen sollen. 

    Wie haben sich die Veränderungen am Haus auf Ihren Alltag und Ihre Lebensqualität ausgewirkt?
    Insgesamt positiv, da die Wohnqualität verbessert werden konnte, z.B. durch neue Bodenheizung, keine Absätze mehr zwischen den verschiedenen Räumen, grössere Fenster, neue Geräte, pflegeleichte Oberflächen. Das neue Wohngefühl ist rundum positiv. 

    Haben Sie Tipps oder Ratschläge für andere Hausbesitzer, die einen Umbau in Betracht ziehen?
    Wir denken es ist wichtig zu wissen, dass ein Umbau immer ein «work in progress» ist und dass sich das Projekt auch nach der Planungsphase weiterentwickelt. Da bei unserem Umbau ein Kostenrahmen vorgegeben war, konnten gewisse Wünsche erst im Laufe des Projekts berücksichtigt werden und das war voraus manchmal schwierig zu begreifen 

    Würden Sie wieder ein solches Projekt in Angriff nehmen? Welches fünf wertvollen Tipps haben Sie dazu? Was muss man besonders beachten?
    Ein Umbau erfordert Durchhaltewillen, Geduld und gute Nerven. Wichtig scheint uns auch das Bewusstsein, dass ein Umbau ein Prozess ist, der sich im Laufe des Projekts weiterentwickelt. Vertrauen Sie Raumtakt, sie sind die Fachleute. 

    Werden Sie Raumtakt in Ihrem Freundes- und Bekanntenkreis weiterempfehlen?
    Unbedingt, wir sind mit dem Resultat des Umbaus sehr zufrieden und können Raumtakt bestens weiterempfehlen.

 

Weitere Projekte

Weiterlesen
Wohnen Linda Wohnen Linda

Bachtobel

Ein Reiheneinfamilienhaus von 1890 in Zürich wurde bis auf die Tragstruktur zurückgebaut und umfassend erneuert. Der Umbau umfasste eine Gründungsstabilisierung bis in 15 Meter Tiefe sowie eine energetische und räumliche Neuordnung des historischen Bestands.

 

Details

Fokus: Ein Reiheneinfamilienhaus von 1890 in Zürich wurde bis auf die Tragstruktur zurückgebaut und umfassend erneuert. Der Umbau umfasste eine Gründungsstabilisierung bis in 15 Meter Tiefe sowie eine energetische und räumliche Neuordnung des historischen Bestands.
Nummer: 1121.00
Disziplin: Architektur, Innenarchitektur
Typologie: Wohnen
Leistung: 2 Vorstudie, 3 Projektierung, 4 Ausführung, 5 Realisierung
Jahr: 2024 - 2025
Standort: Bachtobelstrasse 26, 8045 Zürich
Kunde: Privat
Fotograf: Studio Gataric Fotografie

Das Projekt

Die Bachtobelstrasse 26 ist Teil einer Reihenhauszeile im Zürcher Quartier Wiedikon. Das schmale, um 1890 erbaute Reiheneinfamilienhaus steht unweit des Industrieareals Binz, das sich um die Wende zum 20. Jahrhundert gemeinsam mit Arbeiterhäusern entwickelte. Die umliegenden Häuser aus jener Zeit prägen bis heute mit ihren verputzten Fassaden, Fensterläden und Steildächern den Altbau-Charme des Viertels.

Eine junge Familie initiierte die umfassende Sanierung des in die Jahre gekommenen Hauses. Ziel war, den historischen Charakter zu bewahren und gleichzeitig modernen Wohnkomfort zu schaffen – ein Spannungsfeld, das sämtliche Planungsentscheide prägte.

Zunächst wurde die bauliche Substanz gründlich ertüchtigt. Wegen des setzungsempfindlichen Uetliberglehms unter dem Gebäude musste die Fundation mit 19 Mikropfählen und einer neuen Stahlbetonplatte verstärkt werden. Auch die Holzbalkendecken im Innern wurden erneuert und statisch verstärkt, um heutigen Anforderungen gerecht zu werden. Eine neue, filigrane Stahltreppe verbindet nun alle Geschosse und ersetzt das alte Treppenhaus durch eine leichte, offene Konstruktion.

Die Grundrisse wurden neu organisiert, damit grosszügigere Wohnräume mit direkterer Gartenanbindung entstehen. Im Erdgeschoss öffnen grossflächige Verglasungen den Wohnraum zum Garten und schaffen einen fliessenden Übergang zwischen drinnen und draussen. Zusätzlich wurden neue Nasszellen in die bestehende Bausubstanz eingefügt, um den gestiegenen Ansprüchen an Komfort gerecht zu werden.

Das gestalterische Konzept setzt auf Zurückhaltung und Authentizität. Eine ruhige, helle Farbwelt und natürliche Materialien dominieren die Innenräume und verleihen dem Haus eine freundliche, zeitgemässe Atmosphäre. Zugleich wurden historische Details, wo immer möglich, erhalten oder zeitgemäss neu interpretiert – sei es ein originales Profil an der Fassade oder ein traditioneller Beschlag im Innern.

Äusserlich bleibt das Haus seiner Zeit treu: Die Fassade erhielt einen neuen Wärmedämmverputz mit Anstrich sowie dreifach isolierverglaste Fenster mit integriertem Sonnenschutz. Hinter der Hülle des Altbaus sorgt moderne Haustechnik mit Luft-Wärmepumpe, verbesserter Dämmung und sanierter Dacheindeckung für höhere Energieeffizienz und mehr Wohnkomfort.

Somit erfüllt das sanierte Reiheneinfamilienhaus die Anforderungen zeitgemässen Wohnens für die junge Familie, ohne seinen Charme einzubüssen.

 

Weitere Projekte

Weiterlesen
Wohnen AB Wohnen AB

Meisenweg

In einer inventarisierten Zürcher Wohnsiedlung wird ein Reihenhaus aus den 1920er‑Jahren so weitergebaut, dass historische Substanz und zeitgemässes Familienwohnen selbstverständlich zusammenkommen.

 

Details

Fokus: In einer inventarisierten Wohnsiedlung in Zürich wird ein denkmalgeschütztes Reiheneinfamilienhaus so weitergebaut, dass historische Substanz und zeitgemässes Wohnen zusammenfinden.
Nummer: 1120.00
Disziplin: Architektur, Innenarchitektur
Typologie: Wohnen
Leistung: 2 Vorstudien 3 Projektierung 4 Ausführung 5 Realisierung
Jahr: 2023 - 2024
Standort: Meisenweg 5, 8038 Zürich
Kunde: Privat
Fotograf: Studio Gataric Fotografie

Das Projekt

Weiterbauen im Ensemble. Sanfte Transformation eines Reihenhauses von 1924

Wie lässt sich ein Reihenhaus aus den 1920er-Jahren weiterentwickeln, ohne den Grundton der Siedlung zu verfälschen? Am Meisenweg 5 in Zürich-Wollishofen zeigt ein Umbau für eine junge Familie, was es heisst, vorhandene Substanz zu lesen, ihren Wert zu erkennen und darauf angemessen zu antworten – mit präzisen Eingriffen, zurückhaltender Materialwahl und einem klaren Bekenntnis zum Ensemble.

Kontext: Gartenstadt und Heimatstil

Das Reihenhaus wurde 1924 errichtet und gehört zur Siedlung Meisenweg, die im Spezialinventar der Stadt Zürich als spätes Beispiel des romantisch geprägten Heimatstils gelistet ist. Die Anlage bildet einen geschlossenen Wohnhof mit Vorgärten, kurzen Treppenaufgängen und einer homogenen Erscheinung in Volumetrie, Materialwahl und Farbigkeit. Ihr Architekt Friedrich Hirsbrunner folgte dem Gartenstadtgedanken nach Raymond Unwin und Hans Bernoulli – einer städtebaulichen Idee, die Wohnen im Grünen, soziale Durchmischung und gemeinschaftliches Leben zu verbinden suchte. Ursprünglich durch die Genossenschaft zur Beschaffung billiger Wohnungen errichtet, befinden sich die Häuser heute in privatem Besitz. Ihre typologische Klarheit und städtebauliche Ordnung sind weitgehend erhalten geblieben.

Genau diese Ordnung bildet den Ausgangspunkt des Entwurfs: Nicht die Überwindung des Bestehenden ist das Ziel, sondern dessen Fortschreibung unter veränderten Bedingungen. Das Gebäude wird so weiterentwickelt, dass es in eine nächste Nutzungsphase überführt werden kann – Weiterbauen statt Ersetzen, gebautes Erbe als kulturelles Kapital begreifen.

Haltung: Lesen, stärken, ergänzen

Die Renovation folgt einem klaren Prinzip: Eingriffe gezielt setzen, die vorhandene Substanz stärken, den Ausbau auf einen zeitgemässen Standard bringen. Charakteristische Elemente – die Fischgrätböden aus Buchenholz, die markante Treppe aus Eiche, die bienenwabenförmigen Keramikplatten in der Küche – wurden erhalten, ergänzt oder in neuer Form interpretiert. Die gestalterischen Mittel sind auf den Bestand abgestimmt und respektieren dessen Ausdruck.

Das Dach wurde energetisch saniert und wärmetechnisch ertüchtigt – ein erster Schritt in Richtung einer langfristig geplanten ökologischen Heizlösung. Der Eingriff versteht sich als Teil einer Strategie, die nicht alles auf einmal löst, sondern phasenweise vorgeht und dabei die im Bestand gebundene graue Energie schont.

Raumfolge und Licht

Ein zentraler Eingriff betrifft das Dachgeschoss, das zuvor kaum genutzt wurde. Aus zwei kleinen Kammern und einem WC entstehen zwei helle Kinderzimmer mit Galerieebenen, ein separates Bad und ein kompakter Arbeitsraum. Durch das Öffnen bis zum First, das Freilegen der Dachbalken und eine durchgehende Untersicht aus Birkenholz gewinnt der Raum an Grosszügigkeit und Qualität. Massive Fichtenbodenriemen und präzise gesetzte Dachfenster betonen den wohnlichen Charakter und sorgen für gleichmässige Belichtung.

Im Obergeschoss wurde die räumliche Organisation überarbeitet: Die bestehende zweite Küche wurde rückgebaut, um Platz für ein grösseres Bad mit vorgelagerter Ankleide zu schaffen. Die beiden Schlafzimmer mit originalem Fischgrätparkett wurden aufgefrischt.

Im Erdgeschoss öffnet sich der Wohnraum neu zum Esszimmer – es entsteht eine zusammenhängende Raumsequenz mit Blickbezug zum Garten. Das vormals durchgehende Bad wird neu zoniert und dient als Garderobe und Gäste-WC. Durch das Versetzen des Kücheneingangs entsteht eine klare räumliche Achse, welche die beiden Gartenbereiche visuell und funktional miteinander verbindet.

Materialität und Detail: Spuren der Transformation

Im gesamten Haus stand die Frage nach einer angemessenen Weiterentwicklung im Vordergrund – wie weit darf ein Eingriff gehen, und wo hat er sich zurückzunehmen? Materialien und Details wurden präzise auf die historische Substanz abgestimmt.

Wo neue Eingriffe sichtbar bleiben, sind sie bewusst differenziert. Exemplarisch dafür steht die Stelle im Erdgeschoss, an der ein Wanddurchbruch eine Lücke im Parkett hinterliess: Sie wurde mit Zement ergänzt – eine ruhige, aber deutliche Spur der Transformation. Nicht kaschiert, nicht betont, sondern als das gezeigt, was sie ist: Zeugnis eines Eingriffs, der das Haus in seine nächste Phase überführt.

So bleibt der Charakter des Hauses lesbar, während seine räumlichen und funktionalen Qualitäten zeitgemäss erweitert werden. Die Siedlung Meisenweg, als Ort des gemeinschaftlichen Wohnens im Grünen entworfen, findet in diesem Umbau eine Antwort, die ihrem ursprünglichen Gedanken treu bleibt – und ihn für die Gegenwart öffnet.

 

Weitere Projekte

Weiterlesen
Wohnen Stefan Müller Wohnen Stefan Müller

Baumberger

Kernsanierung und Umbau eines Reiheneinfamilienhauses von 1932 im Quartier Friesenberg in Zürich – neue Raumorganisation, Eingangsgestaltung und Dachausbau im Dialog mit der bestehenden Reihentypologie.

 

Details

Fokus: Kernsanierung und Umbau eines Reiheneinfamilienhauses, Baujahr 1932, Friesenberg, Zürich.
Nummer: 1127.00
Disziplin: Architektur, Innenarchitektur
Typologie: Wohnen
Leistung: 3 Projektierung, 4 Ausschreibung, 5 Realisierung
Jahr: 2025
Standort: Georg-Baumberger
Kunde: Privat
Fotograf: Studio Gataric Fotografie

Das Projekt

Am südlichen Hang des Uetlibergs, im von Wohnsiedlungen und Grünräumen geprägten Quartier Friesenberg im Kreis 3, wird ein Reiheneinfamilienhaus aus der Zwischenkriegszeit grundlegend erneuert. Das Quartier gehört zur ehemaligen Gemeinde Wiedikon, die 1893 in die Stadt Zürich eingemeindet wurde, und wurde ab den 1920er Jahren etappenweise als Gartenstadt mit genossenschaftlichen Siedlungen überbaut. Das Haus liegt am Georg Baumberger Weg, einer 1932 nach dem Politiker, Nationalrat und Schriftsteller Georg Baumberger benannten Erschliessungsstrasse mit einheitlicher Reihenhausstruktur.

Das 1932 erstellte Reihenhaus wird zwischen Februar 2024 und Dezember 2025 in mehreren Etappen bis auf die tragenden Bauteile zurückgebaut und baulich, räumlich sowie energetisch auf einen zeitgemässen Stand gebracht. Im Erdgeschoss ersetzt eine neue Stahlbetonbodenplatte die bestehende Konstruktion. Teile der alten Hourdisdecken werden entfernt und durch neue Geschossdecken in Holzbauweise ergänzt. Gleichzeitig werden Küche, Bad und Gebäudetechnik vollständig erneuert, sodass das Haus konstruktiv und haustechnisch faktisch einem Neubau im Bestand entspricht.

Die innere Organisation wird neu gelesen und entlang heutiger Wohnbedürfnisse präzisiert. Unter-, Erd-, Ober- und Dachgeschoss werden typologisch neu gefasst. Eine einläufige Metalltreppe verbindet den ehemaligen Keller mit den Wohngeschossen und dem ausgebauten Dach und bildet das Rückgrat der vertikalen Erschliessung. Das Dachgeschoss, zuvor nur eingeschränkt nutzbar, wird durch vier neu eingefügte Dachflächenfenster und die klare Anbindung an die übrigen Geschosse zu einem vollwertigen Aufenthaltsbereich mit gleichmässiger Belichtung.

Besonderes Augenmerk gilt der Adressbildung an der Nordseite. Der Haupteingang wird vom bisherigen, aussenliegenden Zugang abgekoppelt und ins Erdgeschoss verlegt. Die frühere Eingangstür bleibt als rundes Fenster in der Fassade ablesbar und markiert die Transformation des Hauses innerhalb der Reihe. Eine auskragende Betonplatte definiert den neuen Eingang. Ein 1.20 m vorspringendes Vordach mit Diagonalstreben nimmt die Linie dieser Platte auf und führt sie als horizontales Motiv über die Fassade weiter.

An der Südfassade reagiert die Öffnungsstruktur auf die neue innere Disposition. Ein verbreitertes Fenster im Erdgeschoss stärkt die Beziehung zum Garten und verbessert die natürliche Belichtung der Haupträume, ohne die tektonische Ordnung der Reihenfassade zu unterlaufen. Im rückwärtigen Bereich fassen Monobetonelemente die Aussenräume und bilden zusammen mit den innenräumlichen Eingriffen eine klare Sequenz von Eingang, Wohnen und Garten.

Gestalterisch knüpft das Projekt an die Sprache des Bestandes an, ohne diese zu imitieren. Farbkonzept, Proportionen und Linienführung werden aufgenommen, in der Materialisierung geschärft und in eine präzise, zeitgenössische Detaillierung übersetzt. Die Eingriffe bleiben als neue Schicht ablesbar und bewahren zugleich den Charakter der ursprünglichen Reihentypologie. So entsteht innerhalb der homogenen Häuserzeile ein eigenständiges, zukunftsgerichtetes Raumgefüge, das die Qualitäten des Quartiers Friesenberg als Wohnlage am Fuss des Uetlibergs stärkt.

 

Weitere Projekte

Weiterlesen
Wohnen Linda Wohnen Linda

Friesenberg

 

Details

Fokus: Ein Reiheneinfamilienhaus auf dem Friesenberg wird konstruktiv und energetisch erneuert und mit einem neuen, familientauglichen Raumgefüge weitergebaut.
Nummer: 1046.00
Disziplin: Architektur, Innenarchitektur
Typologie: Wohnen
Leistung: 3 Projektierung, 4 Ausschreibung, 5 Realisierung
Jahr: 2020 - 2022
Standort: Privat
Kunde: Privat
Fotograf: Studio Gataric Fotografie

Das Projekt

Am südlichen Hang des Uetlibergs, im von Reihenhauszeilen und Grünräumen geprägten Quartier Friesenberg, wird ein Reiheneinfamilienhaus aus den frühen 1930er Jahren für eine junge Familie umfassend erneuert. Der Eingriff setzt dort an, wo der Bestand an seine Grenzen stösst: konstruktiv, räumlich und nutzungsbezogen. Zugleich legt er das Potenzial der vorhandenen Substanz frei.

Das Haus wird etappenweise bis auf seine tragenden Strukturen zurückgebaut und in seiner inneren Organisation neu gefasst. Küche und Badezimmer werden vollständig erneuert; die Raumaufteilung wird entlang heutiger Wohnbedürfnisse präzisiert, ohne den typologischen Charakter des Reihenhauses aufzulösen. Sämtliche elektrischen und sanitären Installationen werden ersetzt und auf einen zeitgemässen Stand gebracht. Das Gebäude entspricht damit haustechnisch faktisch einem Neubau im Bestand.

Die Fassade wird im Zuge des Umbaus gezielt überarbeitet. Neue Fenster verbessern die natürliche Belichtung der Haupträume und stärken die Beziehung zwischen Innen- und Aussenraum. Rollläden und Sonnenstoren ergänzen die Öffnungen und regulieren Licht und Wärmeeintrag im Jahresverlauf. Das Farb- und Materialkonzept entstand in enger Zusammenarbeit mit der Bauherrschaft: Im Erdgeschoss setzt ein neuer Terrazzofliessestrisch einen präzisen Bodenbelag; in den Obergeschossen werden die bestehenden Riemenböden instandgesetzt und durch neue Dielen ergänzt, wo die Substanz es erfordert.

Die Etappenstrategie folgt einer klaren Priorität. Zunächst werden die konstruktiven und bauphysikalischen Mängel behoben, die Dämmung erneuert und der Einzug für die Bauherrschaft ermöglicht. In den nachfolgenden Phasen sind der Ausbau des Dachgeschosses, eine Erdsonderbohrung für die neue Wärmepumpe sowie die Neuterrassierung der Aussenanlage vorgesehen. Diese Eingriffe vervollständigen das Haus schrittweise zu einem zukunftsfähigen Wohngebäude am Fuss des Uetlibergs.

 

Weitere Projekte

Weiterlesen
Wohnen Linda Wohnen Linda

Magnus

Raumtakt verlegt sein Head Office in eine ehemalige Spenglerei im Zürcher Kreis 4. Auf 120 m2 entsteht ein flexibler Atelier- und Büroraum, der den Bestand präzise weiterbaut und analoge wie digitale Arbeitsformen verbindet. Das Studio steht für zirkuläre, zukunftsfähige Innenarchitektur und macht den kreativen Prozess räumlich sichtbar.

 

Details

Fokus: RAUMTAKT Head Office ZRH
Nummer: 1150.00
Disziplin: Innenarchitektur
Typologie: Arbeiten
Leistung: 3 Projektierung, 4 Ausschreibung, 5 Realisierung
Jahr: 2025
Standort: Magnusstrasse 21, 8004 Zürich
Kunde: RAUMTAKT GmbH
Fotograf: Studio Gataric Fotografie

Das Projekt

Raumtakt, 2014 im Basislager in Zürich Altstetten gegründet, hat sich in gut einem Jahrzehnt von einem jungen Büro mit geteilten Infrastrukturen zu einem eigenständigen Akteur an der Schnittstelle von Architektur, Innenraum und Raumstrategien entwickelt. Nach der Phase im Werkhof Binz, geprägt von robusten Arbeitsprozessen und experimentellen Formaten, markiert der Umzug 2026 in eine ehemalige Spenglerei im Zürcher Kreis 4 einen programmatischen Schritt: weg von der peripheren Produktionsadresse hin zu einem dichten urbanen Gefüge, in dem Arbeit, Alltag und Stadtraum direkt ineinandergreifen.

Die neue Bürofläche von rund 120 m² liegt im Obergeschoss eines Bestandsbaus mit industrieller Prägung. Der räumliche Charakter mit tiefen Grundrissen, tragenden Strukturen und sichtbaren Installationen wurde nicht kaschiert, sondern als Ausgangspunkt für die Transformation zum Studio genutzt. Anstelle eines radikalen Ausbaus stand die präzise Bearbeitung des Vorgefundenen im Vordergrund. Der Bestand wurde in Zonen gegliedert: offene Arbeitslandschaften, konzentrierte Projektbereiche, Flächen für Material- und Modellarbeit sowie eine gemeinsame Mitte für Besprechung, Austausch und Aneignung im Alltag.

Das Head Office versteht sich als räumliches Manifest der Arbeitsweise von Raumtakt. Flexible, nicht hierarchisierte Arbeitsplätze, mobile Möblierungen, im Detail sorgfältig ausgearbeitete Einbauten erlauben es, Projektteams und Nutzungsmodi schnell zu rekonfigurieren. Die Organisation des Grundrisses folgt weniger einer klassischen Bürotypologie als der Logik eines Ateliers, in dem analoge Modelle, Pläne und Materialproben ebenso selbstverständlich präsent sind wie digitale Arbeitsplätze. Der Raum dient der Produktion und zugleich der Kommunikation von Projekten nach innen und aussen.

Die Transformation der ehemaligen Spenglerei wurde in einem kompakten Zeitraum von nur einem Monat vom Entwurf über die Ausführungsplanung bis zum Umzug realisiert. Diese Verdichtung der Prozesse verlangte eine enge Verzahnung von Planung und handwerklicher Umsetzung. Sämtliche handwerklichen Arbeiten wurden von Studio Aftermidnight ausgeführt, mit dem Raumtakt in einem dialogischen Prozess Materialien, Oberflächen und Detaillierungen entwickelte. Der Ausbau versteht sich als präzise Intervention mit wenigen, klar gesetzten Elementen wie raumbildenden Einbauten, gezielt geführtem Licht und einer zurückhaltenden, auf Langlebigkeit angelegten Materialpalette, die den Bestand transformiert, ohne seine Geschichte zu überdecken.

Im lebendigen Kontext des Kreis 4, geprägt von Mischnutzungen, kleinteiligen Gewerbestrukturen und hoher Frequenz im öffentlichen Raum, tritt das neue Head Office nach aussen bewusst zurückhaltend auf. Die Schwelle zwischen Strasse und Studio ist als durchlässige Zone gedacht. Der Stadtraum wird visuell und atmosphärisch in die Arbeitswelt hineingezogen, während der Innenraum als Filter und Resonanzkörper des urbanen Umfelds wirkt. Seit Juni 2026 arbeitet Raumtakt hier in einem Setting, das die eigene Praxis räumlich spiegelt: wandelbar, prozesshaft und eng mit seinem städtischen Kontext verwoben, ein Atelier, das den kreativen Prozess nicht nur beherbergt, sondern täglich neu anregt.

 

Weitere Projekte

Weiterlesen
Wohnen Linda Wohnen Linda

Stauffacher

In der Nähe des Stauffacher wurde die Machbarkeit einer behutsamen Weiterentwicklung eines Mehrfamilienhauses von 1894 geprüft. Die Studie zielt auf einen qualitätsvollen Umbau, eine massvolle Verdichtung und eine gestalterische Neuinterpretation der historischen Substanz. Der Entwurf respektiert den städtischen Blockrand und sucht nach Möglichkeiten, das Haus im Sinn einer zeitgenössischen Stadtnutzung weiterzudenken – dicht, zurückhaltend und mit Haltung.

 

Details

Fokus: In der Nähe des Stauffacher wurde die Machbarkeit einer behutsamen Weiterentwicklung eines Mehrfamilienhauses von 1894 geprüft. Die Studie zielt auf einen qualitätsvollen Umbau, eine massvolle Verdichtung und eine gestalterische Neuinterpretation der historischen Substanz. Der Entwurf respektiert den städtischen Blockrand und sucht nach Möglichkeiten, das Haus im Sinn einer zeitgenössischen Stadtnutzung weiterzudenken – dicht, zurückhaltend und mit Haltung.
Nummer: 1103.00
Disziplin: Architektur, Innenarchitektur
Typologie: Wohnen
Leistung: 2 Vorstudien, 3 Projektierung
Jahr: 2022 - 2024
Standort: Bäckerstrasse 10, 8004 Zürich
Kunde: Zaltana Properties AG
Fotograf: Zaltana Properties AG

Das Projekt

Die Liegenschaft an der Bäckerstrasse 10 liegt im innerstädtischen Umfeld von Zürich, wenige Gehminuten vom Hauptbahnhof entfernt. Inmitten eines gewachsenen Quartiers mit direkter Nähe zu Erholungsräumen wie dem Kasernenareal oder der Sihl vereint das Wohnhaus aus dem Jahr 1894 urbane Dichte mit hoher Lebensqualität. Obwohl nicht denkmalgeschützt, prägt das fünfgeschossige Gebäude mit seiner historistischen Fassade den Charakter der Strassenflucht wesentlich mit.

Eine Machbarkeitsstudie untersucht die räumliche und funktionale Weiterentwicklung des Gebäudes, das zuletzt 2004 einer Totalsanierung unterzogen wurde. Ziel ist die sorgfältige Modernisierung der bestehenden Wohnungen sowie eine massvolle Nachverdichtung durch zusätzliche, kompakte Wohneinheiten pro Geschoss – etwa für Wochenaufenthalter.

Die Grundrissstudien setzen auf klare, strukturierte Raumabfolgen und nutzen die bestehenden Flächen effizient aus. Ergänzt wird das Konzept durch eine vertiefte Auseinandersetzung mit dem Dachgeschoss. Ein Ausbau unter Berücksichtigung der Quartiererhaltungszone wurde geprüft, verbleibt jedoch aufgrund gesetzlicher und wirtschaftlicher Rahmenbedingungen innerhalb enger Grenzen.

Im Zentrum der Entwurfsidee steht ein zurückhaltendes, fein abgestimmtes Farb- und Materialkonzept. Mit geöltem Eichenparkett in Fischgratverlegung, keramischen Platten von Mutina und aufeinander abgestimmten Farbtönen von Farrow & Ball wird eine zeitgemässe Atmosphäre geschaffen, die Bestand und Erneuerung verbindet. Die Gestaltung interpretiert die bestehende Fassadenstruktur respektvoll neu – etwa durch gezielte Anpassungen bei Fenstern und Brüstungen – und stärkt so die architektonische Identität des Hauses.

 

Weitere Projekte

Weiterlesen
Wohnen AB Wohnen AB

Triemli

Ein Einfamilienhaus aus den 1950er-Jahren in Zürich-Albisrieden wurde sorgfältig umgebaut und modernisiert. Der Umbau öffnet den kompakten Bestand zur Umgebung, stärkt die Beziehung zwischen Innen- und Aussenraum und interpretiert die bestehende Struktur zurückhaltend neu, zeitgemäss, ortsbezogen und mit architektonischer Haltung.

 

Details:

Fokus: Ein Einfamilienhaus aus den 1950er-Jahren in Zürich-Albisrieden wurde sorgfältig umgebaut und modernisiert. Der Umbau öffnet den kompakten Bestand zur Umgebung, stärkt die Beziehung zwischen Innen- und Aussenraum und interpretiert die bestehende Struktur zurückhaltend neu, zeitgemäss, ortsbezogen und mit architektonischer Haltung.
Nummer: 1008.00
Disziplin: Architektur, Innenarchitektur
Typologie: Wohnen
Leistung: 3 Projektierung 4 Ausschreibung 5 Realisierung
Jahr: 2015 - 2016
Kosten: CHF 700’000.00
Standort: Triemlistrasse 104, 8047 Zürich
Status: Realisiert
Kunde: Privat
Fotograf: Studio Gataric Fotografie
Presse: NZZ Residence, Umbauen + Renovieren Ausgabe 02/18

Das Projekt

Eingebettet in der Wohnsiedlung „Globus-Heimeli“, die in den 1930er-Jahren erbaut wurde, weist das erstelle Einfamilienhaus in Zürich-Albisrieden eine einzigartige Lage auf: Das grosszügige Grundstück ist umgeben von zwei Bächen und zahlreichen Bäumen. Damit befinden sich die Bewohner mitten in der Stadt im Grünen. Beim ursprünglichen Bau des Hauses kam diese Lage insgesamt zu wenig zur Geltung.

RAUMTAKT wurde mit dem Umbau und der energetischen Sanierung des Objektes an der Triemlistrasse beauftragt. Die Herausforderung beim Umbau und der Sanierung des 1952 erbauten Einfamilienhauses bestand darin, eine zeitgemässe und nachhaltig funktionierende Raumlösung zu kreieren. Die Neuaufteilung der Räume, die ursprünglich in den 1950er Jahren erbaut wurden, brachten mit der Sanierung mehr Wohnfläche dank einer raffinierten Nutzung der Räume. Durch die Entfernung von zwei Tragwänden wurden neue Flächen gewonnen, die der modernen Symbiose von Wohnen und Kochen entsprach. Um die Lasten abzufangen, wurden zwei Stahlträger und eine Stütze eingezogen, die durch den geschickten Entwurf einer neuen Raumlösung den gesamten Bereich offener wirken lassen. Dieser neu geschaffene Raum zeichnet auch ein multifunktionales, individuell erstelltes Möbel aus, das den Lastenträger ummantelt. An drei verschiedenen Seiten kann das Möbel für die Küche, für den Eingangsbereich sowie das Wohnzimmer verschieden genutzt werden. Das Konzept der dezenten Verstaumöglicheiten, die sich in den Raum integrieren, zieht sich durch das ganze Haus hindurch.

Durch eine grosszügige Öffnung des Hauses zum Garten hin sowie dem geschickten Einsatz eines Schwedenofens hat das Haus einen modernen und zugleich heimeligen Touch erhalten. Der Einsatz des Kaminofens „elements“ des deutschen Anbieters Skantherme bringt multifunktionale Gestaltungsmöglichkeiten mit sich. Das Möbel kann etwa beim Besuch von Gästen, bei dem Einsatz von Entertainment-Geräten oder bei der Umstellung des Raumes flexibel, schnell und einfach umgenutzt werden. Der Schwedenofen wird mit einem speziell angefertigten Raummöbel ergänzt, dass je nach Bedürfnis unterschiedlich zum Einsatz kommen kann. Damit kann dem Raum immer wieder eine neue Ausrichtung und Gestalt verliehen werden.

Mit dem Umbau und der Gesamtsanierung schufen Raumtakt Architekten aber nicht nur ein moderne und praktische Raumlösung, sondern aus energetischen Gründen wurde auch eine Komplettsanierung der Gebäudetechnik vorgenommen. Dabei wurden die Heizung-, Sanitär- und Elektroinstallationen den heutigen Bedingungen angepasst, in dem sie komprimiert in einem Raum untergebracht wurden. Das ergab eine komplett neue Bodenheizung, eine Schliessung der Kältebrücken sowie neue Fenster. Dazu wurden die Rohre für die künftige Solartherme verlegt.

Der Umbau an der Triemlistrasse zeigt exemplarisch auf, wie sich mit dank integrierten Verstaumöglichkeiten, praktischen Elementen sowie einer geschickten Raumauteilung ein Haus neu erleben und bewohnen lässt. Ein Schwerpunkt von Raumtakt, unter der Leitung des Geschäftsinhabers Stefan Müller, ist die Umnutzung von Räumen in bestehenden Strukturen.

 

Weitere Projekte

Weiterlesen
Wohnen AB Wohnen AB

Heslibach

Ein Zweifamilienhaus in Küsnacht wird in Etappen zum nachhaltigen Wohnhaus umgebaut. Der Bestand aus den 1970er-Jahren wird strukturell, energetisch und gestalterisch weiterentwickelt. Durch gezielte Eingriffe entsteht ein flexibles Wohnkonzept, das sich an unterschiedliche Lebensphasen anpasst, sorgfältig geplant und ortsbezogen umgesetzt.

 

Details

Fokus: Ein Zweifamilienhaus in Küsnacht wird in Etappen zum nachhaltigen Wohnhaus umgebaut. Der Bestand aus den 1970er-Jahren wird strukturell, energetisch und gestalterisch weiterentwickelt. Durch gezielte Eingriffe entsteht ein flexibles Wohnkonzept, das sich an unterschiedliche Lebensphasen anpasst, sorgfältig geplant und ortsbezogen umgesetzt.
Nummer: 1021.00
Disziplin: Architektur, Innenarchitektur
Typologie: Wohnen
Leistung: 2 Vorstudien, 3 Projektierung, 4 Ausschreibung, 5 Realisierung
Jahr: 2018 (Vorprojekt), 2019-2020 (Planung und Ausführung)
Kosten: CHF 1’050’000.00
Standort: Obere Heslibachstrasse, 8700 Küsnacht
Status: Realisiert
Fotograf: Studio Gataric Fotografie
Presse: Häuser Modernisieren, Das Schweizerische Hauseigentümer April24, Der Schweizerische Hauseigentümer September22

Das Projekt

Das stattliche Haus in Küsnacht war im Jahr 1976 vom Architekten Christoph Jung, dem Enkel des bekannten Psychoanalytikers C. G. Jung, geplant und gebaut worden. Es liegt auf einem grossen begrünten Grundstück mit Blick auf den Zürichsee. In seiner Aufteilung und Ausstattung entsprach es vor dem Umbau noch weitestgehend der Entstehungszeit in den siebziger Jahren. Doch trotz der in die Jahre gekommenen Substanz entschieden sich die neuen Eigentümer, das geerbte Gebäude zu erhalten. Allerdings wünschten sie sich für den Bau ein frisches neues Gesicht. Der Auftrag beim Umbau des Zweifamilienhauses in Küsnacht war von Anfang an klar definiert: Die Bauherrschaft wollte das Haus mit einer Kernsanierung von einem Zweifamilien- zu einem Einfamilienhaus umbauen. Dabei sollte es modern und umweltfreundlich werden, ohne dabei den ursprünglichen Charakter ganz zu verlieren. «Wichtig war beim Umbau aber vor allem auch der ökologische Aspekt», sagt Stefan Müller vom Architekturbüro Raumtakt.

Weiter nutzen, aber richtig – so lautete die Devise bei diesem Zweifamilienhaus in Küsnacht. Mit einem Fünf-Jahres-Plan für die Sanierung verfolgen die Eigentümer zusammen mit ihrem Innenarchitekten das Ziel, daraus ein grosszügiges und umweltfreundlicheres Zuhause für eine einzelne Familie zu machen. NZZ Residence, 3/2022 von Nicola Schröder

Die Gebäudesanierungen von Raumtakt haben einen hohen Anspruch an die Umweltfreundlichkeit eines Hauses. Dabei ist es dem Architekturbüro aber auch ein Anliegen, die Budgetvorgaben der Bauherrschaft jederzeiut zu erfüllen. Bei dem Haus in Küsnacht hat man sich deshalb auf einen gestaffelten Fünf-Jahres-Plan für den Gesamtumbau festgelegt. In diesem Hauptprojekt wurde das Haus umgebaut, später sollen noch weitere Aspekte für eine umweltfreundliche Lösung hinzukommen. «Wichtig war dabei, dass ein Architekt genug früh kontaktiert wird und die Planung sauber umgesetzt werden kann». Damit konnte Raumtakt den Ansatz verfolgen, ein zukunftsträchtiges Haus mit energetischen Massnahmen zu erstellen. Doch was bedeutet zukunftsträchtig? In der ersten Phase des Projekts wurde auch ein Bauphysiker beauftragt, der mithalf, umweltfreundliche Produkte zu evaluieren. So wurde schliesslich das Dach mit Cellulose-Floken, die aus wiederverwendbarem Papier bestehen, gebaut. Auch bei den Fenstern kam eine Dreifach-Isolierung zum Zug. Der von Raumtakt erstellte Plan sieht nun vor, dass in fünf Jahren Erdsondenbohrungen gemacht werden und diese Technologie bei einer neuen Heizung eingesetzt wird. 

«Es gab klare Anforderungen an das Haus, etwas an die Küche, die halboffen werden sollte, an die Anzahl der Zimmer sowie die Erschliessung zum grossen Wohnzimmer», erklärt Stefan Müller. Dazu musste er mehrere Durchbrüche im Haus vornehmen sowie auch Einbaulösungen zusammen mit einem Schreiner vornehmen.

 

Weitere Projekte

Weiterlesen
Wohnen AB Wohnen AB

Goldküste

Ein Mehrfamilienhaus aus den 1940er-Jahren in Küsnacht, einer Gemeinde im Kanton Zürich, wurde für eine junge Familie umgebaut und erweitert. Der zuvor ungenutzte Dachraum wurde durch Baumassentransfer erschlossen und zum zeitgemässen Wohnraum ausgebaut. Grosszügige Öffnungen und neue Haustechnik verbinden den Bestand mit heutigen Anforderungen.

 

Details

Fokus: Ein Mehrfamilienhaus aus den 1940er-Jahren in Küsnacht, einer Gemeinde im Kanton Zürich, wurde für eine junge Familie umgebaut und erweitert. Der zuvor ungenutzte Dachraum wurde durch Baumassentransfer erschlossen und zum zeitgemässen Wohnraum ausgebaut. Grosszügige Öffnungen und neue Haustechnik verbinden den Bestand mit heutigen Anforderungen.
Nummer: 1020.00
Disziplin: Architektur, Innenarchitektur
Typologie: Wohnen
Leistung: 2 Vorstudie, 3 Projektierung, 4 Ausschreibung, 5 Realisierung
Jahr: 2017 - 2019
Kosten: CHF 750’000.00
Standort: Zürichstrasse 119d, 8700 Küsnacht
Fotograf: Studio Gataric Fotografie
Presse: Das Schweizerische Hauseigentümer März22

Das Projekt

Seit seiner Errichtung in den 1940er-Jahren befindet sich das Wohnhaus in Küsnacht am Zürichsee im Besitz derselben Familie. In den 1980er-Jahren wurde das ursprünglich zweigeschossige Einfamilienhaus mit Flachdach zum Mehrfamilienhaus erweitert. Das Gebäude erhielt ein zusätzliches Ober- und Dachgeschoss mit Satteldach. Heute bewohnen die Eigentümer die beiden oberen Geschosse selbst und beauftragten Raumtakt mit der Gesamtsanierung und dem Ausbau des Dachraums.

Im Rahmen des Vorprojekts zeigte sich, dass für eine zusätzliche Wohnnutzung im Dachgeschoss ein Baumassentransfer erforderlich war. Das zulässige Bauvolumen konnte über ein benachbartes Grundstück sichergestellt werden. So gelang es, im zuvor ungenutzten Dachraum eine zusätzliche Wohnung zu realisieren. Innenarchitekt Stefan Müller entwickelte zusammen mit der Bauherrschaft ein neues Raumprogramm, das den Bedürfnissen der Familie Rechnung trägt: Rückzugsorte für die Eltern, zwei gleichwertige Kinderzimmer und eine offene Wohnküche als zentrales Element.

Die räumliche Neuorganisation umfasste unter anderem das Versetzen eines nichttragenden Mauerwerks im Eingangsbereich. Dadurch konnte der Grundriss sinnvoll gegliedert und der Wohnraum erweitert werden. Die zuvor kleinteiligen Fenster wurden durch raumhohe Verglasungen ersetzt, die mehr Tageslicht und eine stärkere Beziehung zum Aussenraum ermöglichen. Neben der gestalterischen Aufwertung führt diese Massnahme auch zu einer deutlichen Verbesserung der Energieeffizienz.

Die baulichen Eingriffe machten eine vollständige Erneuerung der Haustechnik erforderlich. Die Dachkonstruktion wurde energetisch ertüchtigt, sämtliche Sanitär-, Heizungs- und Elektroinstallationen ersetzt. Da das Dachgeschoss nun dauerhaft bewohnt wird, wurde die Heiztechnik vom Dach- ins Untergeschoss verlegt. Dort entstand ein neuer Technikraum, von dem aus sämtliche Wohnräume mit einer Bodenheizung erschlossen werden.

Das ausgebaute Dachgeschoss umfasst heute ein Schlafzimmer mit Ankleide, ein neu eingefügtes Badezimmer sowie eine zonierte Raumfolge mit hohem atmosphärischem Anspruch. Für zusätzliche Privatsphäre sorgt eine Glastrennwand im Industrial-Stil mit einem handgefertigten Geländer in Schwarz matt. Die klare Formensprache und der präzise Materialeinsatz unterstreichen den architektonischen Anspruch des Umbaus und setzen zugleich einen markanten Akzent im Inneren des Hauses.

 

Weitere Projekte

Weiterlesen
Wohnen AB Wohnen AB

Richti-Park

Im Neubauensemble Richti-Park in Richterswil mit Blick auf den Zürichsee übernahm Raumtakt die Käuferbetreuung für 48 von insgesamt 60 Eigentumswohnungen. Die Aufgabe umfasste die Begleitung der Ausbauwünsche, die Qualitätssicherung während der Ausführung sowie die Koordination zwischen Käuferschaft, Planung und Ausführung.

 

Details

Fokus: Im Neubauensemble Richti-Park in Richterswil mit Blick auf den Zürichsee übernahm Raumtakt die Käuferbetreuung für 48 von insgesamt 60 Eigentumswohnungen. Die Aufgabe umfasste die Begleitung der Ausbauwünsche, die Qualitätssicherung während der Ausführung sowie die Koordination zwischen Käuferschaft, Planung und Ausführung.
Nummer: 1036.00
Disziplin: Architektur, Innenarchitektur
Typologie: Arbeiten
Leistung: Käuferbetreuung, Innenarchitektur
Jahr: 2019 - 2021
Standort: Richtipark, 8805 Richterswil
Architektur: IM Architektur AG, Pfäffikon SZ
Verkauf: Della Valle Immobilien AG
Bauherr: Immoturicum AG, Wetzikon
Visualisierung: STUDIO 12 GmbH, Luzern

Das Projekt

In Richterswil entstehen im Richti-Park 5 Häuser mit insgesamt 60 grosszügigen Eigentumswohnungen von 2 1/2 bis 5 1/2 Zimmern. Diese befinden sich in bevorzugter, sonniger Hanglage auf einer Fläche von rund 16'000 m². Das Projekt zeichnet sich durch eine wunderschöne Aussichtslage mit Seesicht und gemütlichen Verweilplätzen aus. Stefan Müller von Raumtakt übernimmt als Geschäftsinhaber die Käuferbetreuung für 48 Eigentumswohnungen im Richti-Park. Das Projekt setzt in der beschaulichen Ortschaft einen Akzent, indem sich die Wohnungen dem natürlichen Terrain anpassen und durch die Hanglage eine einzigartige Aussicht auf den Zürichsee bieten. Raumtakt agiert als alleiniger Ansprechpartner für die Käuferschaft und begleitet sie durch den gesamten Kaufprozess bis zur Übergabe. Dies umfasst die Bearbeitung von Offerten, die Erstellung von Käufernachträgen, die Führung der Kostenübersicht sowie die Umsetzung und Koordination von Änderungswünschen. Die Grösse und Vielfalt des Richti-Parks, sowie die verschiedenen Käufergruppen, bieten Raumtakt eine spannende und herausfordernde Aufgabe und die Teilnahme an einem einzigartigen Projekt im Kanton Zürich.

 

Weitere Projekte

Weiterlesen
Wohnen AB Wohnen AB

Hernerholz

Ein Einfamilienhaus in Holzbauweise an der Hernerholzgasse in Horgen wird etappenweise erneuert. Der Umbau beginnt im Erdgeschoss mit einer neuen Wärmepumpe, energetischen Verbesserungen und der Öffnung der Küche zum Wohnraum. Naturmaterialien und helle Oberflächen steigern den Wohnkomfort. Die obere Wohnung bleibt im Bestand, eine spätere Sanierung ist vorgesehen.

 

Details

Fokus: Ein Einfamilienhaus in Holzbauweise an der Hernerholzgasse in Horgen wird etappenweise erneuert. Der Umbau startet im Erdgeschoss mit energetischen Verbesserungen, einer neuen Wärmepumpe sowie der Öffnung der Küche zum Wohnraum. Naturmaterialien, helle Oberflächen und gezielte Eingriffe steigern Komfort und Atmosphäre, ohne die bestehende Struktur zu negieren. Die obere Wohnung bleibt im Bestand, eine spätere Sanierung ist mitgedacht.
Nummer: 1104.00
Disziplin: Architektur, Innenarchitektur
Typologie: Wohnen
Leistung: 2 Vorstudien, 3 Projektierung, 4 Ausführung, 5 Realisierung
Jahr: 2022 - 2023
Kosten: CHF 480‘000
Standort: Hernerholzgasse 37, 8810 Horgen, Kt. Zürich
Kunden: Privat


Das Projekt

An aussichtsreicher Lage oberhalb des Zürichsees wird ein Einfamilienhaus in Holzbauweise an der Hernerholzgasse in Horgen etappenweise saniert. Das Gebäude liegt zwischen Bahngleisen und Landwirtschaftszone und wird schrittweise den aktuellen Anforderungen an Komfort und Nachhaltigkeit angepasst.

Im Fokus der ersten Etappe steht die Wohnung im Erdgeschoss. Die bestehende Gasheizung wird durch eine Luft-Wasser-Wärmepumpe ersetzt, das Bad und die Küche erneuert. Eine neue Bodenheizung sorgt für energetische Effizienz und erhöhten Wohnkomfort. Die Küche wird zum Wohn- und Essbereich geöffnet, ohne das bestehende Raumlayout grundsätzlich zu verändern. Ein vergrössertes Terrassenfenster stärkt die Beziehung zum Aussenraum.

Die Gestaltung orientiert sich an gedeckten Naturtönen und Materialien: Ein Parkettboden aus Eiche, passende Küchen- und Badeinbauten sowie helle Fensterrahmen und neue Innentüren ersetzen die ehemals dunklen Oberflächen. Das Farb- und Materialkonzept wird im gesamten Geschoss konsistent angewendet.

Die Einliegerwohnung im Dachgeschoss bleibt vorerst unangetastet. Die Planung berücksichtigt jedoch bereits mögliche spätere Anpassungen, sodass das Haus flexibel auf sich wandelnde Lebenssituationen reagieren kann.

 

Weitere Projekte

Weiterlesen
Wohnen AB Wohnen AB

Bosa

Umbau und Restauration eines historischen Wohnhauses in Bosa, Sardinien: Raumtakt erneuert Küche, Haustechnik und Ofen, öffnet den Grundriss und schützt die Hülle vor Feuchtigkeit. Die historische Substanz an der Via Sant’Ignazio bleibt ablesbar und wird architektonisch zeitgemäss interpretiert.

 

Details

Fokus: Umbau eines historischen Ferienhauses auf Sardinien mit Fokus auf eine optimierte Raumnutzung, moderne Küche und neue Haustechnik. Raumtakt erhält den ursprünglichen Charakter und schafft durch gezielte Eingriffe ein zeitgemässes, familienfreundliches Wohnumfeld.
Nummer: 1007.00
Disziplin: Innenarchitektur
Typologie: Wohnen
Leistung: 2 Vorstudie, 3 Projektierung, 4 Ausschreibung, 5 Realisierung
Jahr: 2017 - 2018
Kosten: EUR 250’000.00
Standort: Via Sant'Ignazio, 08013 Bosa, Italien
Kunde:Privat

Das Projekt

Im historischen Stadtkern von Bosa, unweit der Burg Serravalle und des Flusses Temo, restaurierte Raumtakt ein jahrhundertealtes Wohnhaus an der Via Sant’Ignazio. Die Gasse ist Teil der gewachsenen mittelalterlichen Struktur mit terrassierten Häusern, barocken und neoklassischen Fassaden sowie städtischer Verdichtung in Hanglage. Raumtakt übernahm Umbau, Innenarchitektur und Baumanagement mit dem Ziel, den historischen Charakter zu bewahren und gleichzeitig eine moderne Wohnqualität zu schaffen. Die Räume wurden geöffnet, Küche und Haustechnik erneuert, ein Ofen eingebaut und die Hülle gegen Feuchtigkeit geschützt. Das restaurierte Haus bleibt lesbar, wirkt jedoch in Nutzung und Atmosphäre neu gedacht und zeitgemäss interpretiert.

 

Weitere Projekte

Weiterlesen
Wohnen AB Wohnen AB

Landhaus

In Gächlingen, Schaffhausen, hat Raumtakt ein Landhaus aus dem 19. Jahrhundert durch Umbau und Innenarchitektur in ein modernes Zuhause verwandelt. Historische Bausubstanz, neue Raumstruktur, offene Küche und sanierte Haustechnik verbinden sich zu einem funktionalen und atmosphärischen Wohnraum.

 

Im Überblick

Fokus: Im Klettgau, in Schaffhausen, hat Raumtakt ein Landhaus aus dem 19. Jahrhundert umgebaut und modernisiert. Der Eingriff verbindet historische Substanz mit zeitgemässer Wohnqualität. Neue Raumstrukturen, eine offene Küche und sanierte Oberflächen schaffen ein modernes, atmosphärisches Zuhause im ländlichen Kontext.
Nummer: 1001.00
Disziplin: Architektur, Innenarchitektur
Typologie: Wohnen
Leistung: 3 Projektierung 4 Ausschreibung 5 Realisierung
Jahr: 2014 - 2015
Standort: Privat
Kunde: Privat

Das Projekt

Im Kanton Schaffhausen hat Raumtakt ein Landhaus aus dem 19. Jahrhundert umfassend renoviert und architektonisch weiterentwickelt. Das Ensemble, in der Nordostschweiz gelegen, wurde unter Berücksichtigung seiner historischen Identität in die Gegenwart überführt. Ziel war es, den rustikalen Charakter zu bewahren und gleichzeitig ein zeitgemässes Wohnumfeld zu schaffen.

Im Zentrum der Massnahmen stand die Anpassung der Raumstruktur an heutige Wohnbedürfnisse. Die Küche im Obergeschoss wurde komplett erneuert und als offener, funktionaler Raum neu organisiert. Ein erhaltenes Stück Natursteinwand zeugt von der baulichen Geschichte. Von hier gelangt man direkt in ein grosszügiges, lichtdurchflutetes Wohnzimmer, das mit Sprossenfenstern, Holzvertäfelungen und einem klassischen Kachelofen eine warme Wohnatmosphäre erzeugt.

Die Herausforderung bestand darin, die ursprüngliche Holzkonstruktion mit zeitgenössischen Materialien in Einklang zu bringen. Raumtakt verband gezielte Eingriffe mit gestalterischer Zurückhaltung und schuf so eine neue architektonische Lesbarkeit.

Im Dachgeschoss wurden Sanierungsarbeiten am Unterdach vorgenommen, um energetische und technische Standards zu erfüllen. Die gesamte Haustechnik wurde auf den neuesten Stand gebracht. Die Fassade wurde instand gesetzt und neu gestrichen. Ein neuer Zugang vom Garten ins Untergeschoss schafft funktionale Mehrwerte im Alltag und stärkt die Verbindung zwischen Innen- und Aussenraum.

 

Weitere Projekte

Weiterlesen