Baumberger

 

Details

Fokus: Kernsanierung und Umbau eines Reiheneinfamilienhauses, Baujahr 1932, Friesenberg, Zürich.
Nummer: 1127.00
Disziplin: Architektur, Innenarchitektur
Typologie: Wohnen
Leistung: 3 Projektierung, 4 Ausschreibung, 5 Realisierung
Jahr: 2025
Standort: Georg-Baumberger
Kunde: Privat
Fotograf: Studio Gataric Fotografie

Das Projekt

Am südlichen Hang des Uetlibergs, im von Wohnsiedlungen und Grünräumen geprägten Quartier Friesenberg im Kreis 3, wird ein Reiheneinfamilienhaus aus der Zwischenkriegszeit grundlegend erneuert. Das Quartier gehört zur ehemaligen Gemeinde Wiedikon, die 1893 in die Stadt Zürich eingemeindet wurde, und wurde ab den 1920er Jahren etappenweise als Gartenstadt mit genossenschaftlichen Siedlungen überbaut. Das Haus liegt am Georg Baumberger Weg, einer 1932 nach dem Politiker, Nationalrat und Schriftsteller Georg Baumberger benannten Erschliessungsstrasse mit einheitlicher Reihenhausstruktur.

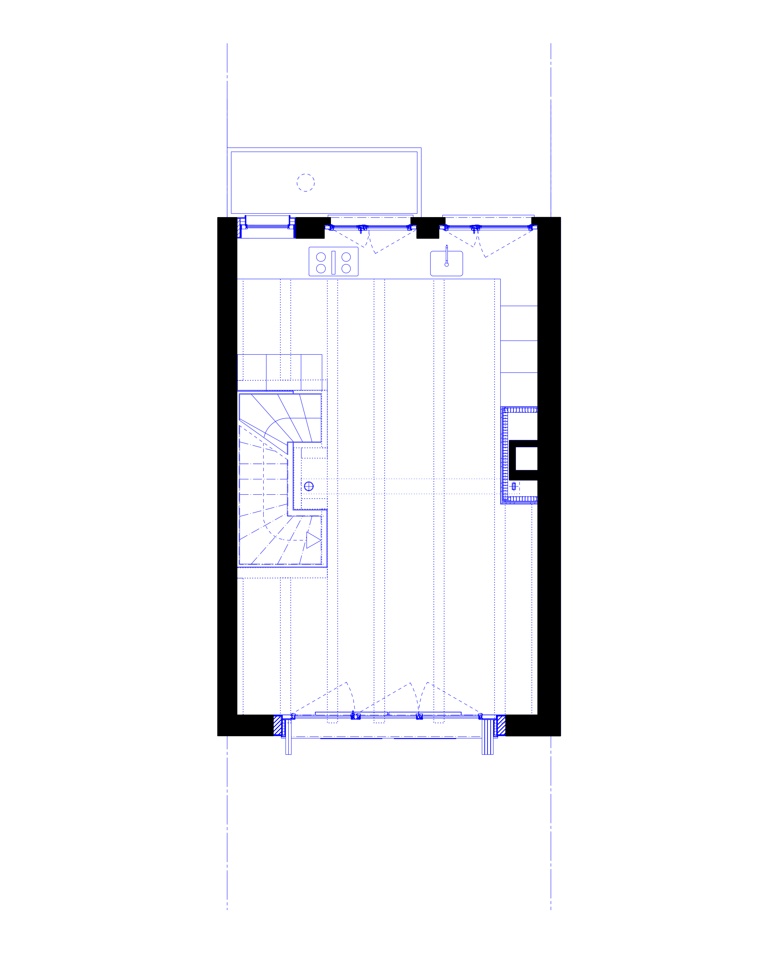
Das 1932 erstellte Reihenhaus wird zwischen Februar 2024 und Dezember 2025 in mehreren Etappen bis auf die tragenden Bauteile zurückgebaut und baulich, räumlich sowie energetisch auf einen zeitgemässen Stand gebracht. Im Erdgeschoss ersetzt eine neue Stahlbetonbodenplatte die bestehende Konstruktion. Teile der alten Hourdisdecken werden entfernt und durch neue Geschossdecken in Holzbauweise ergänzt. Gleichzeitig werden Küche, Bad und Gebäudetechnik vollständig erneuert, sodass das Haus konstruktiv und haustechnisch faktisch einem Neubau im Bestand entspricht.

Die innere Organisation wird neu gelesen und entlang heutiger Wohnbedürfnisse präzisiert. Unter-, Erd-, Ober- und Dachgeschoss werden typologisch neu gefasst. Eine einläufige Metalltreppe verbindet den ehemaligen Keller mit den Wohngeschossen und dem ausgebauten Dach und bildet das Rückgrat der vertikalen Erschliessung. Das Dachgeschoss, zuvor nur eingeschränkt nutzbar, wird durch vier neu eingefügte Dachflächenfenster und die klare Anbindung an die übrigen Geschosse zu einem vollwertigen Aufenthaltsbereich mit gleichmässiger Belichtung.

Besonderes Augenmerk gilt der Adressbildung an der Nordseite. Der Haupteingang wird vom bisherigen, aussenliegenden Zugang abgekoppelt und ins Erdgeschoss verlegt. Die frühere Eingangstür bleibt als rundes Fenster in der Fassade ablesbar und markiert die Transformation des Hauses innerhalb der Reihe. Eine auskragende Betonplatte definiert den neuen Eingang. Ein 1.20 m vorspringendes Vordach mit Diagonalstreben nimmt die Linie dieser Platte auf und führt sie als horizontales Motiv über die Fassade weiter.

An der Südfassade reagiert die Öffnungsstruktur auf die neue innere Disposition. Ein verbreitertes Fenster im Erdgeschoss stärkt die Beziehung zum Garten und verbessert die natürliche Belichtung der Haupträume, ohne die tektonische Ordnung der Reihenfassade zu unterlaufen. Im rückwärtigen Bereich fassen Monobetonelemente die Aussenräume und bilden zusammen mit den innenräumlichen Eingriffen eine klare Sequenz von Eingang, Wohnen und Garten.

Gestalterisch knüpft das Projekt an die Sprache des Bestandes an, ohne diese zu imitieren. Farbkonzept, Proportionen und Linienführung werden aufgenommen, in der Materialisierung geschärft und in eine präzise, zeitgenössische Detaillierung übersetzt. Die Eingriffe bleiben als neue Schicht ablesbar und bewahren zugleich den Charakter der ursprünglichen Reihentypologie. So entsteht innerhalb der homogenen Häuserzeile ein eigenständiges, zukunftsgerichtetes Raumgefüge, das die Qualitäten des Quartiers Friesenberg als Wohnlage am Fuss des Uetlibergs stärkt.

 

Weitere Projekte

Zurück
Zurück

Meisenweg

Weiter
Weiter

Friesenberg