Meisenweg

 

Details

Fokus: In einer inventarisierten Wohnsiedlung in Zürich wird ein denkmalgeschütztes Reiheneinfamilienhaus so weitergebaut, dass historische Substanz und zeitgemässes Wohnen zusammenfinden.
Nummer: 1120.00
Disziplin: Architektur, Innenarchitektur
Typologie: Wohnen
Leistung: 2 Vorstudien 3 Projektierung 4 Ausführung 5 Realisierung
Jahr: 2023 - 2024
Standort: Meisenweg 5, 8038 Zürich
Kunde: Privat
Fotograf: Studio Gataric Fotografie

Das Projekt

Weiterbauen im Ensemble. Sanfte Transformation eines Reihenhauses von 1924

Wie lässt sich ein Reihenhaus aus den 1920er-Jahren weiterentwickeln, ohne den Grundton der Siedlung zu verfälschen? Am Meisenweg 5 in Zürich-Wollishofen zeigt ein Umbau für eine junge Familie, was es heisst, vorhandene Substanz zu lesen, ihren Wert zu erkennen und darauf angemessen zu antworten – mit präzisen Eingriffen, zurückhaltender Materialwahl und einem klaren Bekenntnis zum Ensemble.

Kontext: Gartenstadt und Heimatstil

Das Reihenhaus wurde 1924 errichtet und gehört zur Siedlung Meisenweg, die im Spezialinventar der Stadt Zürich als spätes Beispiel des romantisch geprägten Heimatstils gelistet ist. Die Anlage bildet einen geschlossenen Wohnhof mit Vorgärten, kurzen Treppenaufgängen und einer homogenen Erscheinung in Volumetrie, Materialwahl und Farbigkeit. Ihr Architekt Friedrich Hirsbrunner folgte dem Gartenstadtgedanken nach Raymond Unwin und Hans Bernoulli – einer städtebaulichen Idee, die Wohnen im Grünen, soziale Durchmischung und gemeinschaftliches Leben zu verbinden suchte. Ursprünglich durch die Genossenschaft zur Beschaffung billiger Wohnungen errichtet, befinden sich die Häuser heute in privatem Besitz. Ihre typologische Klarheit und städtebauliche Ordnung sind weitgehend erhalten geblieben.

Genau diese Ordnung bildet den Ausgangspunkt des Entwurfs: Nicht die Überwindung des Bestehenden ist das Ziel, sondern dessen Fortschreibung unter veränderten Bedingungen. Das Gebäude wird so weiterentwickelt, dass es in eine nächste Nutzungsphase überführt werden kann – Weiterbauen statt Ersetzen, gebautes Erbe als kulturelles Kapital begreifen.

Haltung: Lesen, stärken, ergänzen

Die Renovation folgt einem klaren Prinzip: Eingriffe gezielt setzen, die vorhandene Substanz stärken, den Ausbau auf einen zeitgemässen Standard bringen. Charakteristische Elemente – die Fischgrätböden aus Buchenholz, die markante Treppe aus Eiche, die bienenwabenförmigen Keramikplatten in der Küche – wurden erhalten, ergänzt oder in neuer Form interpretiert. Die gestalterischen Mittel sind auf den Bestand abgestimmt und respektieren dessen Ausdruck.

Das Dach wurde energetisch saniert und wärmetechnisch ertüchtigt – ein erster Schritt in Richtung einer langfristig geplanten ökologischen Heizlösung. Der Eingriff versteht sich als Teil einer Strategie, die nicht alles auf einmal löst, sondern phasenweise vorgeht und dabei die im Bestand gebundene graue Energie schont.

Raumfolge und Licht

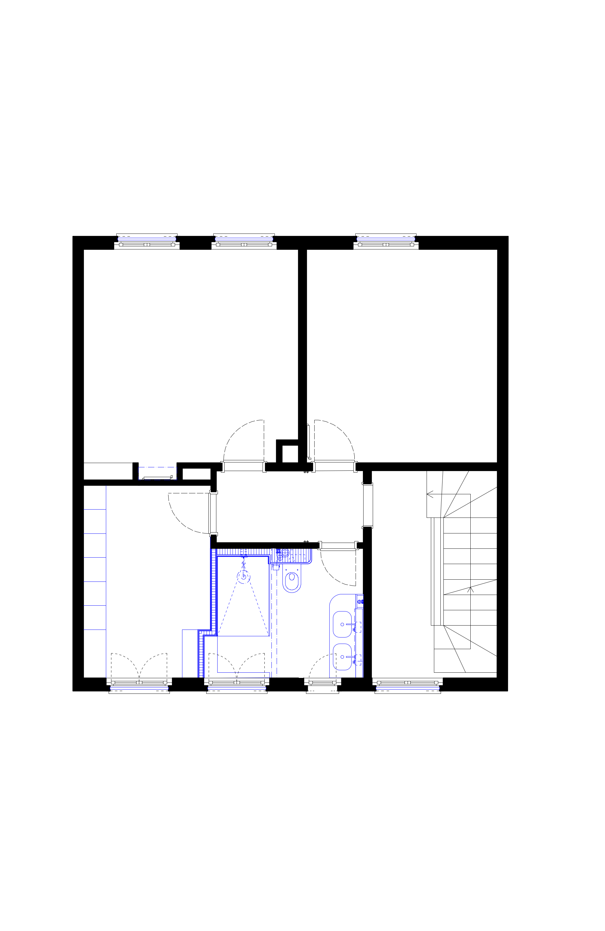
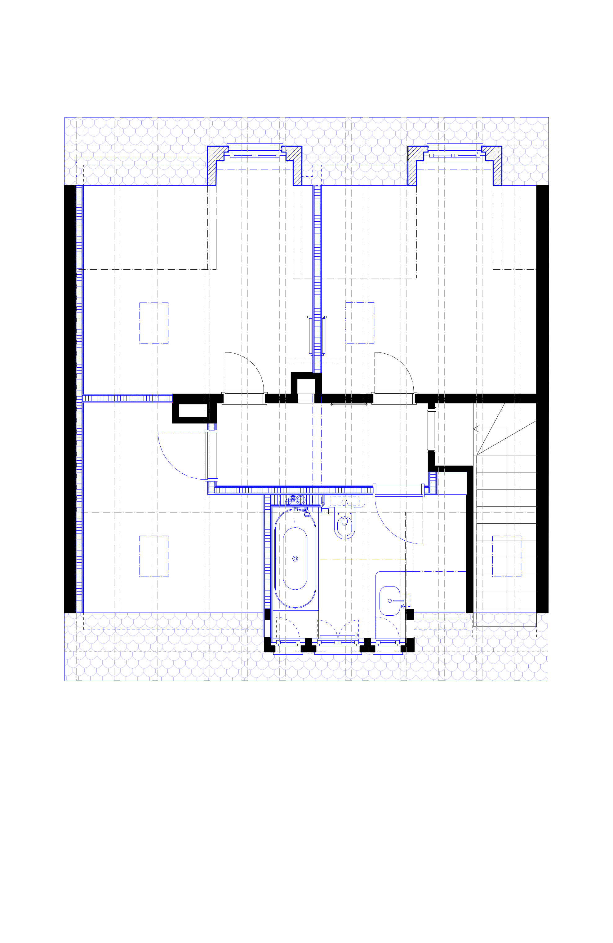
Ein zentraler Eingriff betrifft das Dachgeschoss, das zuvor kaum genutzt wurde. Aus zwei kleinen Kammern und einem WC entstehen zwei helle Kinderzimmer mit Galerieebenen, ein separates Bad und ein kompakter Arbeitsraum. Durch das Öffnen bis zum First, das Freilegen der Dachbalken und eine durchgehende Untersicht aus Birkenholz gewinnt der Raum an Grosszügigkeit und Qualität. Massive Fichtenbodenriemen und präzise gesetzte Dachfenster betonen den wohnlichen Charakter und sorgen für gleichmässige Belichtung.

Im Obergeschoss wurde die räumliche Organisation überarbeitet: Die bestehende zweite Küche wurde rückgebaut, um Platz für ein grösseres Bad mit vorgelagerter Ankleide zu schaffen. Die beiden Schlafzimmer mit originalem Fischgrätparkett wurden aufgefrischt.

Im Erdgeschoss öffnet sich der Wohnraum neu zum Esszimmer – es entsteht eine zusammenhängende Raumsequenz mit Blickbezug zum Garten. Das vormals durchgehende Bad wird neu zoniert und dient als Garderobe und Gäste-WC. Durch das Versetzen des Kücheneingangs entsteht eine klare räumliche Achse, welche die beiden Gartenbereiche visuell und funktional miteinander verbindet.

Materialität und Detail: Spuren der Transformation

Im gesamten Haus stand die Frage nach einer angemessenen Weiterentwicklung im Vordergrund – wie weit darf ein Eingriff gehen, und wo hat er sich zurückzunehmen? Materialien und Details wurden präzise auf die historische Substanz abgestimmt.

Wo neue Eingriffe sichtbar bleiben, sind sie bewusst differenziert. Exemplarisch dafür steht die Stelle im Erdgeschoss, an der ein Wanddurchbruch eine Lücke im Parkett hinterliess: Sie wurde mit Zement ergänzt – eine ruhige, aber deutliche Spur der Transformation. Nicht kaschiert, nicht betont, sondern als das gezeigt, was sie ist: Zeugnis eines Eingriffs, der das Haus in seine nächste Phase überführt.

So bleibt der Charakter des Hauses lesbar, während seine räumlichen und funktionalen Qualitäten zeitgemäss erweitert werden. Die Siedlung Meisenweg, als Ort des gemeinschaftlichen Wohnens im Grünen entworfen, findet in diesem Umbau eine Antwort, die ihrem ursprünglichen Gedanken treu bleibt – und ihn für die Gegenwart öffnet.

 

Weitere Projekte

Zurück
Zurück

Bachtobel

Weiter
Weiter

Baumberger